Top.Mail.Ru

Симферопольский бульвар, д. 14

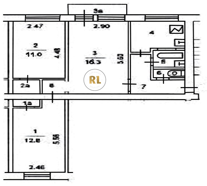
База каталог, Кол-во подъездов: 4, I-511, Москва, Зюзино, Площадь парковки: 0, Пассажирский лифт: 0, От метро: 470, Юго-Западный, нет, Наименьшее кол-во этажей: 5, Наибольшее кол-во этажей: 5, Каховская, Кол-во помещений: 82, Кол-во нежилых помещений: 2, Год ввода в эксплуатацию: 1961, 3-комн, Кол-во жилых помещений: 80, Не присвоен, дом 14, да, да, да, да, да, да, Имеется, Грузовых лифтов: 0, Год постройки: 1961, Симферопольский бульвар, 37.603693, 55.655646
Свяжитесь со мной на счет цены
10 дн.
T55S655646L37S603693T

На карте


Условия сделки

Источник


Старт продаж

Возможно заинтересует