Top.Mail.Ru

улица Главмосстроя, д. 9

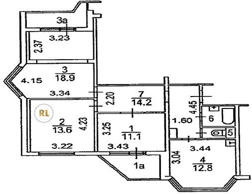
База каталог, Кол-во подъездов: 7, П-44T, Москва, Солнцево, Пассажирский лифт: 14, От метро: 1110, Западный, да, Наименьшее кол-во этажей: 17, Наибольшее кол-во этажей: 17, Говорово, Кол-во помещений: 413, Кол-во нежилых помещений: 1, Год ввода в эксплуатацию: 2006, 3-комн, Кол-во жилых помещений: 412, дом 9, нет, да, да, да, да, нет, Грузовых лифтов: 0, Год постройки: 2006, улица Главмосстроя, 37.406010, 55.655701
Свяжитесь со мной на счет цены
10 дн.
T55S655701L37S406010T

На карте


Условия сделки

Источник


Старт продаж

Возможно заинтересует