Top.Mail.Ru

Новомарьинская ул., д. 13

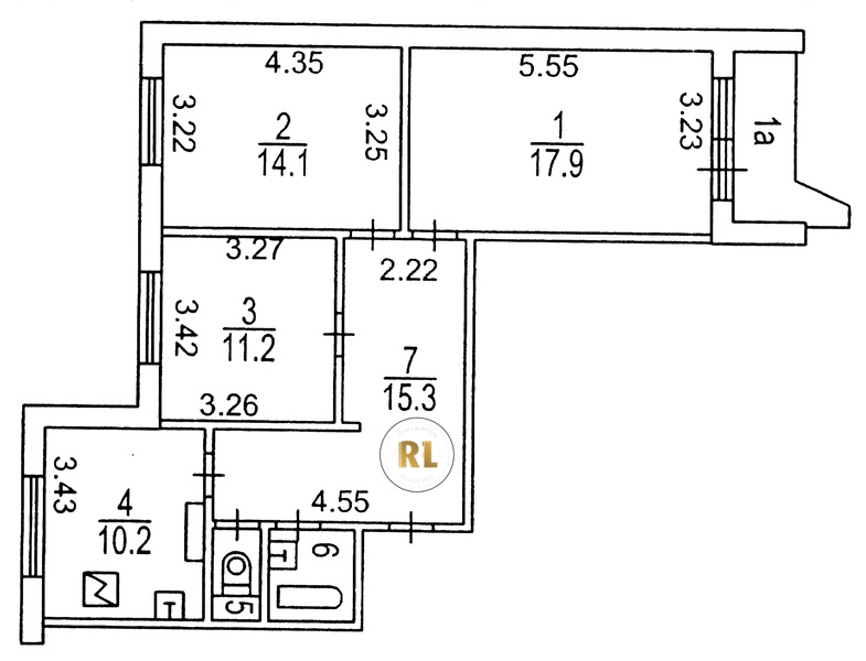
База каталог, Кол-во подъездов: 3, Имеется, П-44, Москва, Марьино, Площадь парковки: 0, Пассажирский лифт: 3, От метро: 860, Юго-Восточный, нет, Наименьшее кол-во этажей: 17, Наибольшее кол-во этажей: 17, Братиславская, Кол-во помещений: 205, Кол-во нежилых помещений: 2, Год ввода в эксплуатацию: 1996, 3-комн, Кол-во жилых помещений: 203, Не присвоен, дом 13, нет, да, да, да, да, да, Имеется, Грузовых лифтов: 3, Год постройки: 1996, Новомарьинская улица, 37.759848, 55.655732
Свяжитесь со мной на счет цены
10 дн.
T55S655732L37S759848T

На карте


Условия сделки

Источник


Старт продаж

Возможно заинтересует