Top.Mail.Ru

улица Богданова, д. 2, к. 1

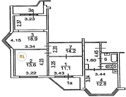
База каталог, Кол-во подъездов: 8, Имеется, П-44T, Москва, Солнцево, Пассажирский лифт: 8, От метро: 950, Западный, да, Наименьшее кол-во этажей: 14, Наибольшее кол-во этажей: 23, Говорово, Кол-во помещений: 549, Кол-во нежилых помещений: 14, Год ввода в эксплуатацию: 2007, 3-комн, Кол-во жилых помещений: 535, D, дом 2, корпус 1, нет, да, да, да, да, да, Имеется, Грузовых лифтов: 10, Год постройки: 2007, улица Богданова, 37.404788, 55.656580
Свяжитесь со мной на счет цены
10 дн.
T55S656580L37S404788T

На карте


Условия сделки

Источник


Старт продаж

Возможно заинтересует