Top.Mail.Ru

Перервинский бульвар, д. 19, к. 1

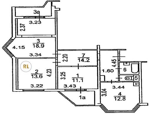
База каталог, Кол-во подъездов: 2, П-44T, Москва, Марьино, Площадь парковки: 0, Пассажирский лифт: 2, От метро: 1530, Юго-Восточный, нет, Наименьшее кол-во этажей: 12, Наибольшее кол-во этажей: 12, Братиславская, Кол-во помещений: 91, Кол-во нежилых помещений: 3, Год ввода в эксплуатацию: 2001, 3-комн, Кол-во жилых помещений: 88, В, дом 19, корпус 1, нет, да, да, да, да, нет, Имеется, Грузовых лифтов: 2, Год постройки: 2001, Перервинский бульвар, 37.771840, 55.657164
Свяжитесь со мной на счет цены
10 дн.
T55S657164L37S771840T

На карте


Условия сделки

Источник


Старт продаж

Возможно заинтересует