Top.Mail.Ru

Братиславская ул., д. 18, к. 1

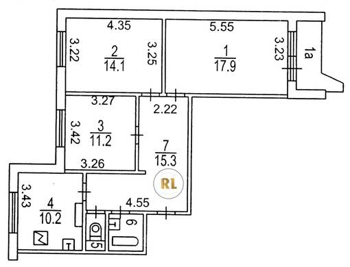
База каталог, Кол-во подъездов: 8, Имеется, П-44, Москва, Марьино, Площадь парковки: 0, Пассажирский лифт: 8, От метро: 610, Юго-Восточный, нет, Наименьшее кол-во этажей: 18, Наибольшее кол-во этажей: 18, Братиславская, Кол-во помещений: 564, Кол-во нежилых помещений: 52, Год ввода в эксплуатацию: 1998, 3-комн, Кол-во жилых помещений: 512, Не присвоен, дом 18, корпус 1, нет, да, да, да, да, да, Имеется, Грузовых лифтов: 8, Год постройки: 1998, Братиславская улица, 37.759839, 55.657540
Свяжитесь со мной на счет цены
10 дн.
T55S657540L37S759839T

На карте


Условия сделки

Источник


Старт продаж

Возможно заинтересует