Top.Mail.Ru

Новомарьинская ул., д. 28

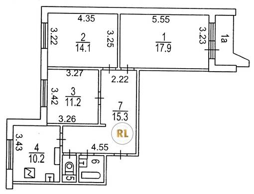
База каталог, Кол-во подъездов: 9, Отсутствует, П-44, Москва, Марьино, Площадь парковки: 0, Пассажирский лифт: 9, От метро: 1240, Юго-Восточный, нет, Наименьшее кол-во этажей: 14, Наибольшее кол-во этажей: 17, Братиславская, Кол-во помещений: 585, Кол-во нежилых помещений: 0, Год ввода в эксплуатацию: 1998, 3-комн, Кол-во жилых помещений: 585, D, дом 28, нет, да, да, да, да, нет, Имеется, Грузовых лифтов: 9, Год постройки: 1998, Новомарьинская улица, 37.767645, 55.657682
Свяжитесь со мной на счет цены
10 дн.
T55S657682L37S767645T

На карте


Условия сделки

Источник


Старт продаж

Возможно заинтересует