Top.Mail.Ru

Болотниковская ул., д. 33, к. 3

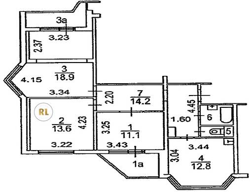
База каталог, Кол-во подъездов: 3, П-44T, Москва, Зюзино, Площадь парковки: 0, Пассажирский лифт: 3, От метро: 950, Юго-Западный, нет, Наименьшее кол-во этажей: 17, Наибольшее кол-во этажей: 17, Каховская, Кол-во помещений: 191, Кол-во нежилых помещений: 5, Год ввода в эксплуатацию: 1999, 3-комн, Кол-во жилых помещений: 186, Не присвоен, дом 33, корпус 3, нет, да, да, да, да, да, Грузовых лифтов: 3, Год постройки: 1999, Болотниковская улица, 37.587676, 55.657814
Свяжитесь со мной на счет цены
10 дн.
T55S657814L37S587676T

На карте


Условия сделки

Источник


Старт продаж

Возможно заинтересует