Top.Mail.Ru

улица Каховка, д. 33, к. 1

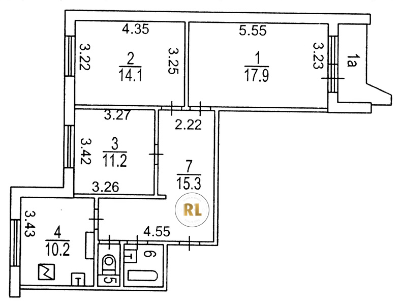
База каталог, Кол-во подъездов: 2, П-44, Москва, Черемушки, Площадь парковки: 0, Пассажирский лифт: 2, От метро: 540, Юго-Западный, нет, Наименьшее кол-во этажей: 16, Наибольшее кол-во этажей: 16, Зюзино, Кол-во помещений: 123, Кол-во нежилых помещений: 3, Год ввода в эксплуатацию: 1983, 3-комн, Кол-во жилых помещений: 120, Не присвоен, дом 33, корпус 1, да, да, да, да, да, да, Грузовых лифтов: 2, Год постройки: 1983, улица Каховка, 37.565677, 55.657956
Свяжитесь со мной на счет цены
10 дн.
T55S657956L37S565677T

На карте


Условия сделки

Источник


Старт продаж

Возможно заинтересует