Top.Mail.Ru

Болотниковская ул., д. 28, к. 1

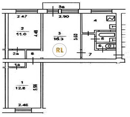
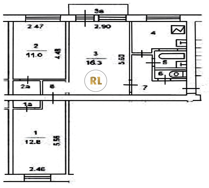
База каталог, Кол-во подъездов: 4, I-511, Москва, Зюзино, Площадь парковки: 0, Пассажирский лифт: 0, От метро: 720, Юго-Западный, нет, Наименьшее кол-во этажей: 5, Наибольшее кол-во этажей: 5, Каховская, Кол-во помещений: 80, Кол-во нежилых помещений: 0, Год ввода в эксплуатацию: 1960, 3-комн, Кол-во жилых помещений: 80, Не присвоен, дом 28, корпус 1, нет, да, да, да, да, да, Грузовых лифтов: 0, Год постройки: 1960, Болотниковская улица, 37.596606, 55.658048
Свяжитесь со мной на счет цены
10 дн.
T55S658048L37S596606T

На карте


Условия сделки

Источник


Старт продаж

Возможно заинтересует