Top.Mail.Ru

Болотниковская ул., д. 33, к. 2

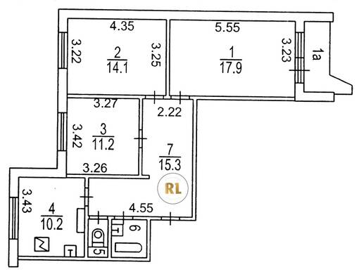
База каталог, Кол-во подъездов: 5, Имеется, П-44, Москва, Зюзино, Площадь парковки: 0, Пассажирский лифт: 5, От метро: 940, Юго-Западный, нет, Наименьшее кол-во этажей: 14, Наибольшее кол-во этажей: 17, Каховская, Кол-во помещений: 315, Кол-во нежилых помещений: 2, Год ввода в эксплуатацию: 1999, 3-комн, Кол-во жилых помещений: 313, Не присвоен, дом 33, корпус 2, нет, да, да, да, да, да, Имеется, Грузовых лифтов: 5, Год постройки: 1999, Болотниковская улица, 37.589177, 55.658312
Свяжитесь со мной на счет цены
10 дн.
T55S658312L37S589177T

На карте


Условия сделки

Источник


Старт продаж

Возможно заинтересует