Top.Mail.Ru

улица Перерва, д. 31

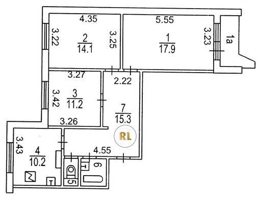
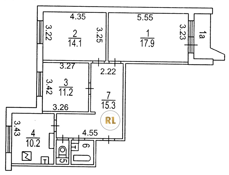
База каталог, Кол-во подъездов: 8, Имеется, П-44, Москва, Марьино, Площадь парковки: 0, Пассажирский лифт: 8, От метро: 590, Юго-Восточный, нет, Наименьшее кол-во этажей: 17, Наибольшее кол-во этажей: 17, Братиславская, Кол-во помещений: 458, Кол-во нежилых помещений: 11, Год ввода в эксплуатацию: 1999, 3-комн, Кол-во жилых помещений: 447, Не присвоен, дом 31, да, да, да, да, да, да, Имеется, Грузовых лифтов: 8, Год постройки: 1999, улица Перерва, 37.744262, 55.658581
Свяжитесь со мной на счет цены
10 дн.
T55S658581L37S744262T

На карте


Условия сделки

Источник


Старт продаж

Возможно заинтересует