Top.Mail.Ru

Братиславская ул., д. 19, к. 2

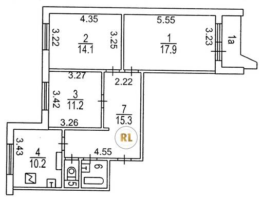
База каталог, Кол-во подъездов: 7, Имеется, П-44, Москва, Марьино, Площадь парковки: 0, Пассажирский лифт: 7, От метро: 800, Юго-Восточный, нет, Наименьшее кол-во этажей: 17, Наибольшее кол-во этажей: 17, Братиславская, Кол-во помещений: 481, Кол-во нежилых помещений: 14, Год ввода в эксплуатацию: 1998, 3-комн, Кол-во жилых помещений: 467, Не присвоен, дом 19, корпус 2, нет, да, да, да, да, да, Имеется, Грузовых лифтов: 7, Год постройки: 1998, Братиславская улица, 37.762929, 55.658642
Свяжитесь со мной на счет цены
10 дн.
T55S658642L37S762929T

На карте


Условия сделки

Источник


Старт продаж

Возможно заинтересует