Top.Mail.Ru

Болотниковская ул., д. 31, к. 1

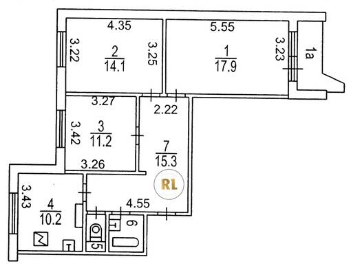
База каталог, Кол-во подъездов: 3, П-44, Москва, Зюзино, Площадь парковки: 0, Пассажирский лифт: 3, От метро: 890, Юго-Западный, нет, Наименьшее кол-во этажей: 14, Наибольшее кол-во этажей: 14, Каховская, Кол-во помещений: 160, Кол-во нежилых помещений: 5, Год ввода в эксплуатацию: 2000, 3-комн, Кол-во жилых помещений: 155, Не присвоен, дом 31, корпус 1, нет, да, да, да, да, да, Имеется, Грузовых лифтов: 3, Год постройки: 2000, Болотниковская улица, 37.591503, 55.659074
Свяжитесь со мной на счет цены
10 дн.
T55S659074L37S591503T

На карте


Условия сделки

Источник


Старт продаж

Возможно заинтересует