Top.Mail.Ru

Братиславская ул., д. 16, к. 1

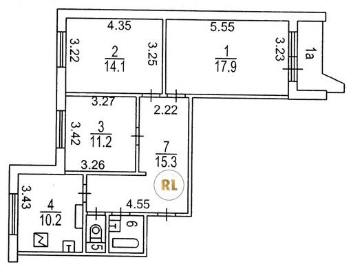
База каталог, Кол-во подъездов: 5, П-44-1/17, Москва, Марьино, Площадь парковки: 0, Пассажирский лифт: 5, От метро: 340, Юго-Восточный, нет, Наименьшее кол-во этажей: 17, Наибольшее кол-во этажей: 17, Братиславская, Кол-во помещений: 286, Кол-во нежилых помещений: 6, Год ввода в эксплуатацию: 1998, 3-комн, Кол-во жилых помещений: 280, Не присвоен, дом 16, корпус 1, да, да, да, да, да, да, Имеется, Грузовых лифтов: 5, Год постройки: 1997, Братиславская улица, 37.757440, 55.659358
Свяжитесь со мной на счет цены
10 дн.
T55S659358L37S757440T

На карте


Условия сделки

Источник


Старт продаж

Возможно заинтересует