Top.Mail.Ru

Новомарьинская ул., д. 34

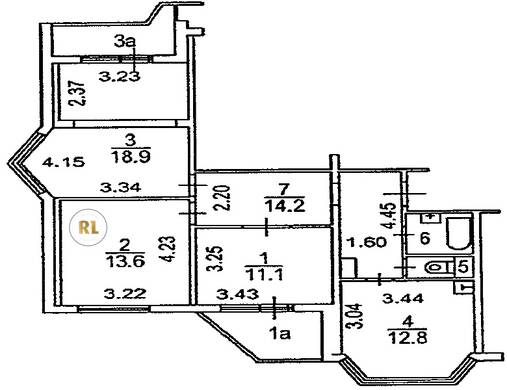
База каталог, Кол-во подъездов: 3, Имеется, П-44T, Москва, Марьино, Площадь парковки: 0, Пассажирский лифт: 3, От метро: 1550, Юго-Восточный, нет, Наименьшее кол-во этажей: 15, Наибольшее кол-во этажей: 15, Братиславская, Кол-во помещений: 186, Кол-во нежилых помещений: 7, Год ввода в эксплуатацию: 2001, 3-комн, Кол-во жилых помещений: 179, Не присвоен, дом 34, нет, да, да, да, да, нет, Имеется, Грузовых лифтов: 3, Год постройки: 2001, Новомарьинская улица, 37.772747, 55.659409
Свяжитесь со мной на счет цены
10 дн.
T55S659409L37S772747T

На карте


Условия сделки

Источник


Старт продаж

Возможно заинтересует