Top.Mail.Ru

Батюнинская ул., д. 14

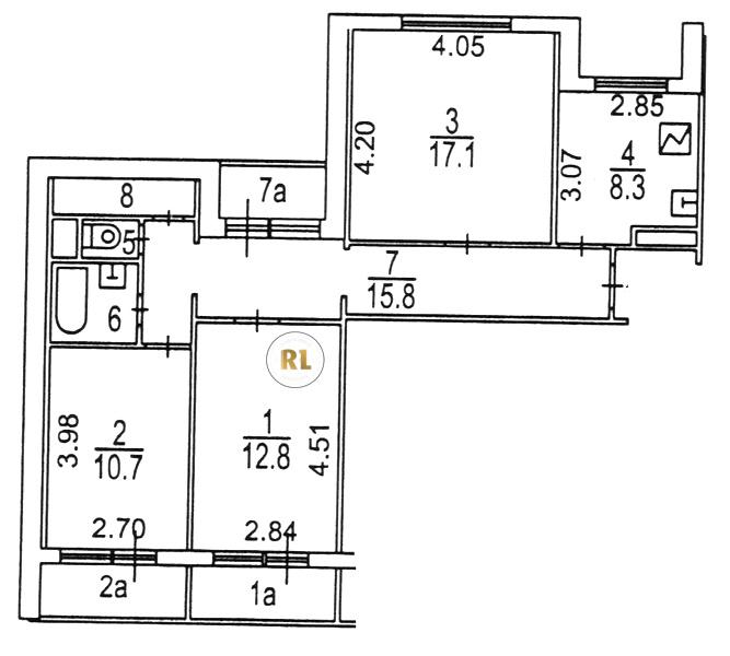
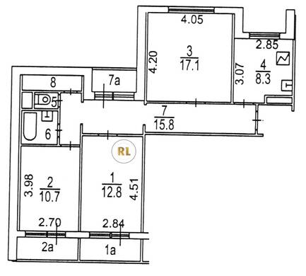
База каталог, Кол-во подъездов: 6, Отсутствует, П-55, Москва, Печатники, Площадь парковки: 0, Пассажирский лифт: 6, От метро: 3500, Юго-Восточный, нет, Наименьшее кол-во этажей: 12, Наибольшее кол-во этажей: 12, Марьино, Кол-во помещений: 223, Кол-во нежилых помещений: 3, Год ввода в эксплуатацию: 1987, 3-комн, Кол-во жилых помещений: 220, E, дом 14, нет, нет, нет, нет, нет, нет, Имеется, Грузовых лифтов: 6, Год постройки: 1987, Батюнинская улица, 37.705221, 55.659856
Свяжитесь со мной на счет цены
10 дн.
T55S659856L37S705221T

На карте


Условия сделки

Источник


Старт продаж

Возможно заинтересует