Top.Mail.Ru

Старокаширское шоссе, д. 4, к. 2

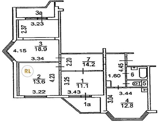
База каталог, Кол-во помещений: 190, П-44T, Москва, Нагатино-Садовники, Площадь парковки: 0, Пассажирский лифт: 4, От метро: 1110, Южный, нет, Наименьшее кол-во этажей: 14, Наибольшее кол-во этажей: 14, Варшавская, Кол-во подъездов: 4, Год ввода в эксплуатацию: 2000, Кол-во нежилых помещений: 0, 3-комн, Кол-во жилых помещений: 190, дом 4, корпус 2, нет, да, да, да, да, нет, Грузовых лифтов: 4, Год постройки: 2000, Старокаширское шоссе, 37.629421, 55.660247
Свяжитесь со мной на счет цены
10 дн.
T55S660247L37S629421T

На карте


Условия сделки

Источник


Старт продаж

Возможно заинтересует