Top.Mail.Ru

Болотниковская ул., д. 36, к. 1

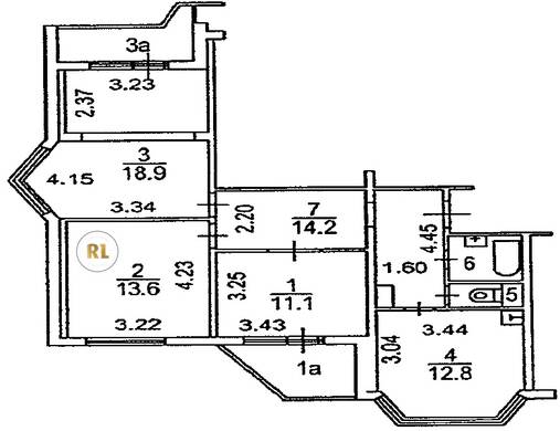
База каталог, Кол-во подъездов: 3, Имеется, П-44T, Москва, Зюзино, Площадь парковки: 0, Пассажирский лифт: 3, От метро: 1090, Юго-Западный, нет, Наименьшее кол-во этажей: 17, Наибольшее кол-во этажей: 17, Каховская, Кол-во помещений: 197, Кол-во нежилых помещений: 5, Год ввода в эксплуатацию: 2011, 3-комн, Кол-во жилых помещений: 192, В+, дом 36, корпус 1, нет, да, да, да, да, да, Имеется, Грузовых лифтов: 3, Год постройки: 2010, Болотниковская улица, 37.591728, 55.660556
Свяжитесь со мной на счет цены
10 дн.
T55S660556L37S591728T

На карте


Условия сделки

Источник


Старт продаж

Возможно заинтересует