Top.Mail.Ru

улица Перерва, д. 45, к. 1

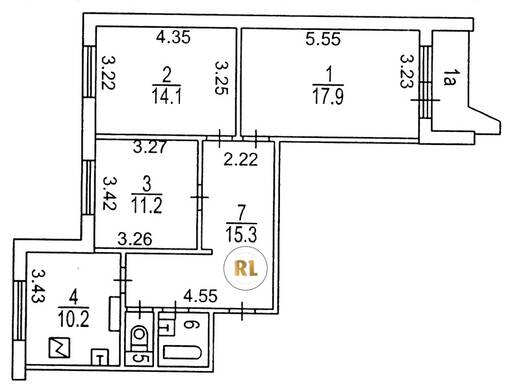
База каталог, Кол-во нежилых помещений: 4, П-44, Москва, Марьино, Пассажирский лифт: 7, От метро: 490, Юго-Восточный, да, Наименьшее кол-во этажей: 17, Наибольшее кол-во этажей: 17, Братиславская, Кол-во помещений: 467, Кол-во подъездов: 7, 3-комн, Год ввода в эксплуатацию: 1999, Кол-во жилых помещений: 463, Не присвоен, дом 45, корпус 1, да, да, да, да, да, да, Имеется, Грузовых лифтов: 7, Год постройки: 1999, улица Перерва, 37.747065, 55.660892
Свяжитесь со мной на счет цены
10 дн.
T55S660892L37S747065T

На карте


Условия сделки

Источник


Старт продаж

Возможно заинтересует