Top.Mail.Ru

Болотниковская ул., д. 36, к. 2

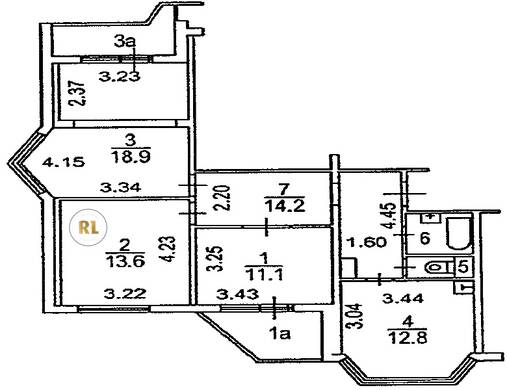
База каталог, Кол-во подъездов: 4, Имеется, П-44T, Москва, Зюзино, Площадь парковки: 0, Пассажирский лифт: 4, От метро: 1010, Юго-Западный, нет, Наименьшее кол-во этажей: 17, Наибольшее кол-во этажей: 17, Нахимовский проспект, Кол-во помещений: 263, Кол-во нежилых помещений: 7, Год ввода в эксплуатацию: 2011, 3-комн, Кол-во жилых помещений: 256, В+, дом 36, корпус 2, нет, да, да, да, да, да, Имеется, Грузовых лифтов: 4, Год постройки: 2010, Болотниковская улица, 37.592941, 55.661019
Свяжитесь со мной на счет цены
10 дн.
T55S661019L37S592941T

На карте


Условия сделки

Источник


Старт продаж

Возможно заинтересует