Top.Mail.Ru

Старокаширское шоссе, д. 4, к. 1

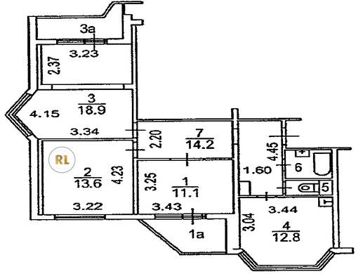
База каталог, Кол-во помещений: 222, П-44T, Москва, Нагатино-Садовники, Площадь парковки: 0, Пассажирский лифт: 4, От метро: 1170, Южный, нет, Наименьшее кол-во этажей: 14, Наибольшее кол-во этажей: 14, Варшавская, Кол-во подъездов: 4, Год ввода в эксплуатацию: 2000, Кол-во нежилых помещений: 0, 3-комн, Кол-во жилых помещений: 222, дом 4, корпус 1, нет, да, да, да, да, нет, Грузовых лифтов: 4, Год постройки: 2000, Старокаширское шоссе, 37.629197, 55.661125
14 800 000 Р
10 дн.
T55S661125L37S629197T
+

На карте


Условия сделки

Источник


Старт продаж