Top.Mail.Ru

Сивашская ул., д. 15

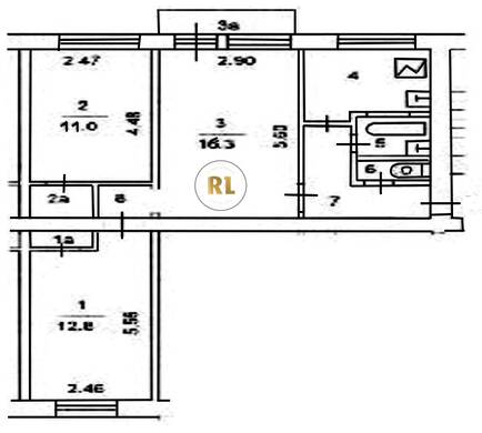
База каталог, Кол-во подъездов: 4, I-511, Москва, Зюзино, Площадь парковки: 0, Пассажирский лифт: 0, От метро: 340, Юго-Западный, нет, Наименьшее кол-во этажей: 5, Наибольшее кол-во этажей: 5, Нахимовский проспект, Кол-во помещений: 80, Кол-во нежилых помещений: 0, Год ввода в эксплуатацию: 1962, 3-комн, Кол-во жилых помещений: 80, Не присвоен, дом 15, да, да, да, да, да, да, Имеется, Грузовых лифтов: 0, Год постройки: 1962, Сивашская улица, 37.600639, 55.661186
Свяжитесь со мной на счет цены
10 дн.
T55S661186L37S600639T

На карте


Условия сделки

Источник


Старт продаж

Возможно заинтересует