Top.Mail.Ru

улица Наметкина, д. 17/68

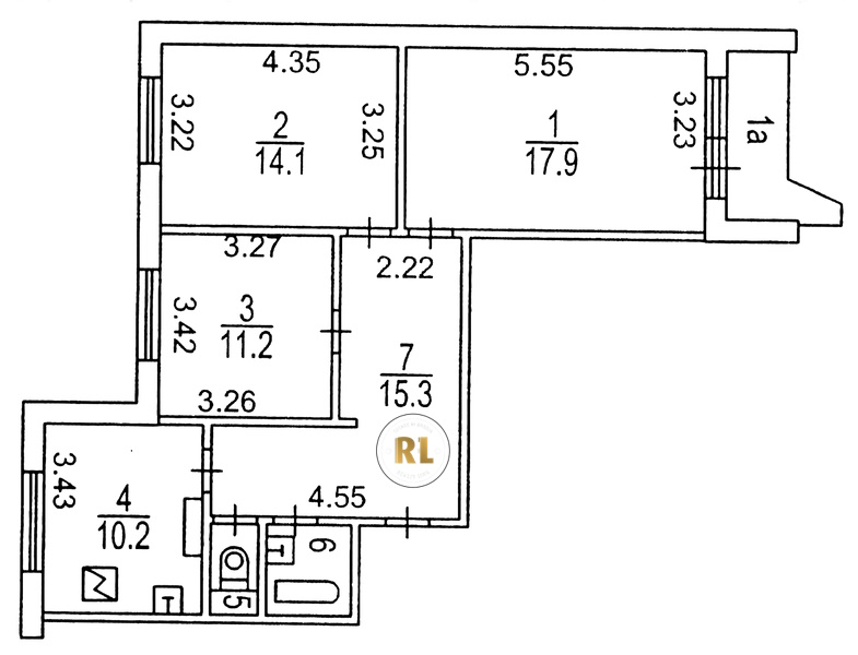
База каталог, Кол-во подъездов: 5, П-44, Москва, Черемушки, Площадь парковки: 0, Пассажирский лифт: 5, От метро: 1120, Юго-Западный, нет, Наименьшее кол-во этажей: 17, Наибольшее кол-во этажей: 17, Зюзино, Кол-во помещений: 327, Кол-во нежилых помещений: 8, Год ввода в эксплуатацию: 1992, 3-комн, Кол-во жилых помещений: 319, Не присвоен, дом 17/68, нет, да, да, да, да, нет, Грузовых лифтов: 5, Год постройки: 1992, улица Наметкина, 37.558113, 55.661547
Свяжитесь со мной на счет цены
10 дн.
T55S661547L37S558113T

На карте


Условия сделки

Источник


Старт продаж

Возможно заинтересует