Top.Mail.Ru

Симферопольский бульвар, д. 2В

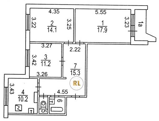
База каталог, Кол-во подъездов: 2, П-44, Москва, Зюзино, Площадь парковки: 0, Пассажирский лифт: 2, От метро: 430, Юго-Западный, нет, Наименьшее кол-во этажей: 16, Наибольшее кол-во этажей: 16, Нахимовский проспект, Кол-во помещений: 127, Кол-во нежилых помещений: 0, Год ввода в эксплуатацию: 1981, 3-комн, Кол-во жилых помещений: 127, Не присвоен, дом 2В, да, да, да, да, да, да, Грузовых лифтов: 2, Год постройки: 1981, Симферопольский бульвар, 37.610260, 55.661557
Свяжитесь со мной на счет цены
10 дн.
T55S661557L37S610260T

На карте


Условия сделки

Источник


Старт продаж

Возможно заинтересует