Top.Mail.Ru

Перервинский бульвар, д. 9

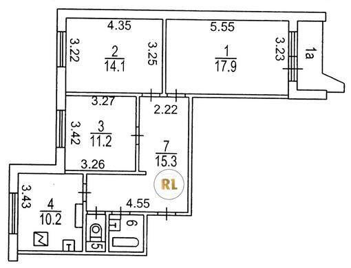
База каталог, Кол-во подъездов: 4, Имеется, П-44, Москва, Марьино, Площадь парковки: 0, Пассажирский лифт: 4, От метро: 1250, Юго-Восточный, нет, Наименьшее кол-во этажей: 1, Наибольшее кол-во этажей: 12, Братиславская, Кол-во помещений: 192, Кол-во нежилых помещений: 1, Год ввода в эксплуатацию: 2000, 3-комн, Кол-во жилых помещений: 191, Не присвоен, дом 9, нет, да, да, да, да, нет, Имеется, Грузовых лифтов: 4, Год постройки: 2000, Перервинский бульвар, 37.766127, 55.661922
Свяжитесь со мной на счет цены
10 дн.
T55S661922L37S766127T

На карте


Условия сделки

Источник


Старт продаж

Возможно заинтересует