Top.Mail.Ru

улица Академика Анохина, д. 26, к. 1

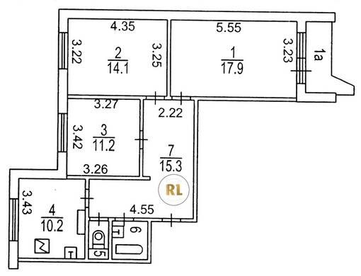
База каталог, Кол-во подъездов: 2, П-44, Москва, Тропарево-Никулино, Площадь парковки: 0, Пассажирский лифт: 2, От метро: 940, Западный, нет, Наименьшее кол-во этажей: 16, Наибольшее кол-во этажей: 16, Юго-Западная, Кол-во помещений: 128, Кол-во нежилых помещений: 1, Год ввода в эксплуатацию: 1984, 3-комн, Кол-во жилых помещений: 127, Не присвоен, дом 26, корпус 1, нет, да, да, да, да, да, Имеется, Грузовых лифтов: 2, Год постройки: 1984, улица Академика Анохина, 37.472432, 55.661994
Свяжитесь со мной на счет цены
10 дн.
T55S661994L37S472432T

На карте


Условия сделки

Источник


Старт продаж

Возможно заинтересует