Top.Mail.Ru

Белореченская ул., д. 45, к. 1

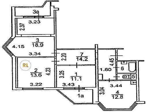
База каталог, Кол-во подъездов: 3, П-44T, Москва, Марьино, Площадь парковки: 0, Пассажирский лифт: 3, От метро: 1750, Юго-Восточный, нет, Наименьшее кол-во этажей: 14, Наибольшее кол-во этажей: 14, Братиславская, Кол-во помещений: 166, Кол-во нежилых помещений: 6, Год ввода в эксплуатацию: 2002, 3-комн, Кол-во жилых помещений: 160, В, дом 45, корпус 1, нет, да, да, да, нет, нет, Имеется, Грузовых лифтов: 3, Год постройки: 2002, Белореченская улица, 37.775119, 55.662044
Свяжитесь со мной на счет цены
10 дн.
T55S662044L37S775119T

На карте


Условия сделки

Источник


Старт продаж

Возможно заинтересует