Top.Mail.Ru

улица Академика Анохина, д. 5, к. 4

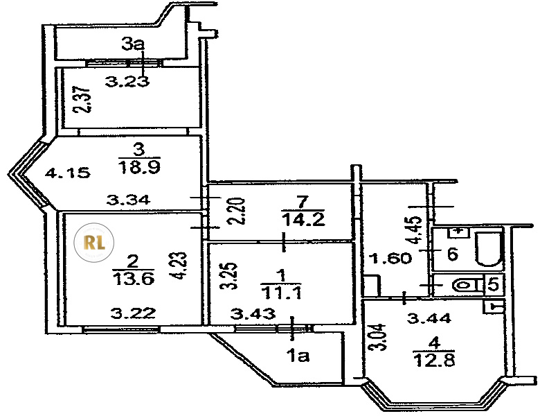
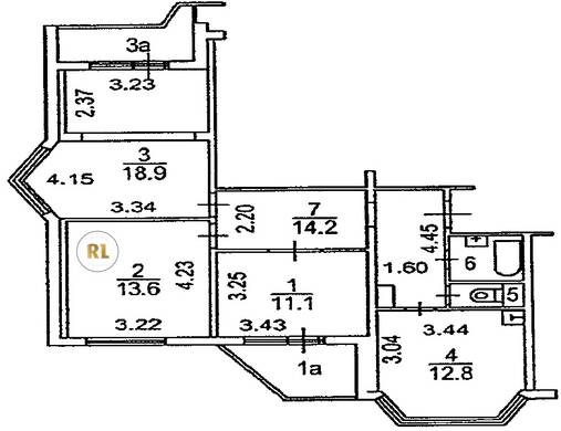
База каталог, Кол-во подъездов: 4, Имеется, П-44T, Москва, Тропарево-Никулино, Площадь парковки: 0, Пассажирский лифт: 4, От метро: 910, Западный, нет, Наименьшее кол-во этажей: 0, Наибольшее кол-во этажей: 17, Юго-Западная, Кол-во помещений: 273, Кол-во нежилых помещений: 4, Год ввода в эксплуатацию: 2002, 3-комн, Кол-во жилых помещений: 269, В, дом 5, корпус 4, нет, да, да, да, да, да, Имеется, Грузовых лифтов: 4, Год постройки: 2002, улица Академика Анохина, 37.475558, 55.662202
Свяжитесь со мной на счет цены
10 дн.
T55S662202L37S475558T

На карте


Условия сделки

Источник


Старт продаж

Возможно заинтересует