Top.Mail.Ru

Белореченская ул., д. 43

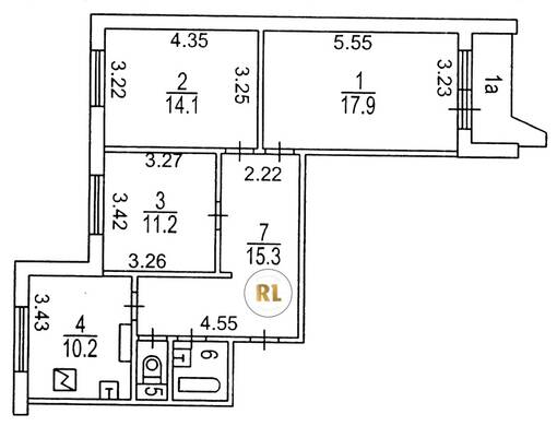
База каталог, Кол-во подъездов: 4, П-44, Москва, Марьино, Площадь парковки: 0, Пассажирский лифт: 4, От метро: 1700, Юго-Восточный, нет, Наименьшее кол-во этажей: 14, Наибольшее кол-во этажей: 14, Братиславская, Кол-во помещений: 222, Кол-во нежилых помещений: 14, Год ввода в эксплуатацию: 2002, 3-комн, Кол-во жилых помещений: 208, Не присвоен, дом 43, нет, да, да, да, нет, нет, Имеется, Грузовых лифтов: 4, Год постройки: 2002, Белореченская улица, 37.773735, 55.662593
Свяжитесь со мной на счет цены
10 дн.
T55S662593L37S773735T

На карте


Условия сделки

Источник


Старт продаж

Возможно заинтересует