Top.Mail.Ru

Нахимовский проспект, д. 7, к. 1

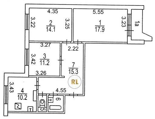
База каталог, Кол-во подъездов: 3, П-44, Москва, Зюзино, Площадь парковки: 0, Пассажирский лифт: 3, От метро: 330, Юго-Западный, нет, Наименьшее кол-во этажей: 16, Наибольшее кол-во этажей: 16, Нахимовский проспект, Кол-во помещений: 187, Кол-во нежилых помещений: 4, Год ввода в эксплуатацию: 1981, 3-комн, Кол-во жилых помещений: 183, Не присвоен, дом 7, корпус 1, да, да, да, да, да, да, Грузовых лифтов: 3, Год постройки: 1981, Нахимовский проспект, 37.611158, 55.663070
Свяжитесь со мной на счет цены
10 дн.
T55S663070L37S611158T

На карте


Условия сделки

Источник


Старт продаж

Возможно заинтересует