Top.Mail.Ru

улица Наметкина, д. 11

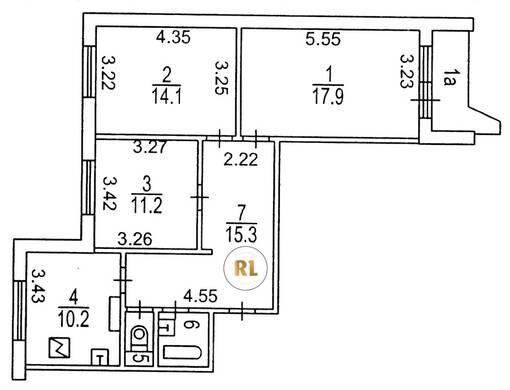
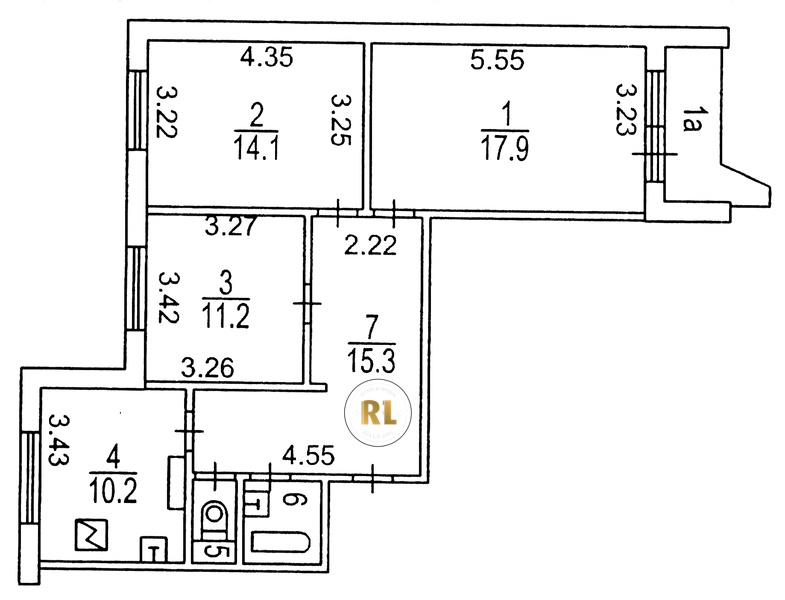
База каталог, Кол-во подъездов: 2, П-44, Москва, Черемушки, Площадь парковки: 0, Пассажирский лифт: 2, От метро: 870, Юго-Западный, нет, Наименьшее кол-во этажей: 17, Наибольшее кол-во этажей: 17, Новые Черёмушки, Кол-во помещений: 130, Кол-во нежилых помещений: 2, Год ввода в эксплуатацию: 1996, 3-комн, Кол-во жилых помещений: 128, Не присвоен, дом 11, нет, да, да, да, да, да, Грузовых лифтов: 2, Год постройки: 1996, улица Наметкина, 37.553648, 55.663156
Свяжитесь со мной на счет цены
10 дн.
T55S663156L37S553648T

На карте


Условия сделки

Источник


Старт продаж

Возможно заинтересует