Top.Mail.Ru

Новочеремушкинская ул., д. 66, к. 1

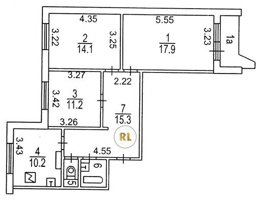
База каталог, Кол-во подъездов: 3, П-44, Москва, Черемушки, Площадь парковки: 0, Пассажирский лифт: 3, От метро: 890, Юго-Западный, нет, Наименьшее кол-во этажей: 17, Наибольшее кол-во этажей: 17, Новые Черёмушки, Кол-во помещений: 193, Кол-во нежилых помещений: 1, Год ввода в эксплуатацию: 1995, 3-комн, Кол-во жилых помещений: 192, Не присвоен, дом 66, корпус 1, нет, да, да, да, да, да, Грузовых лифтов: 3, Год постройки: 1995, Новочеремушкинская улица, 37.560502, 55.663400
Свяжитесь со мной на счет цены
10 дн.
T55S663400L37S560502T

На карте


Условия сделки

Источник


Старт продаж

Возможно заинтересует