Top.Mail.Ru

Белореченская ул., д. 41, к. 2

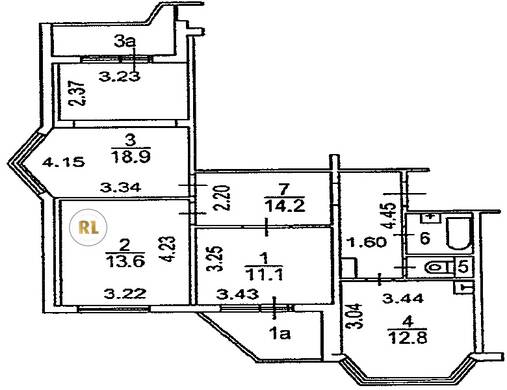
База каталог, Кол-во подъездов: 7, Отсутствует, П-44T, Москва, Марьино, Площадь парковки: 0, Пассажирский лифт: 7, От метро: 1690, Юго-Восточный, нет, Наименьшее кол-во этажей: 14, Наибольшее кол-во этажей: 14, Люблино, Кол-во помещений: 391, Кол-во нежилых помещений: 1, Год ввода в эксплуатацию: 2002, 3-комн, Кол-во жилых помещений: 390, В, дом 41, корпус 2, нет, да, да, да, нет, нет, Имеется, Грузовых лифтов: 7, Год постройки: 2002, Белореченская улица, 37.774212, 55.663532
23 300 000 Р
10 дн.
T55S663532L37S774212T
+

На карте


Условия сделки

Источник


Старт продаж