Top.Mail.Ru

Белореченская ул., д. 30

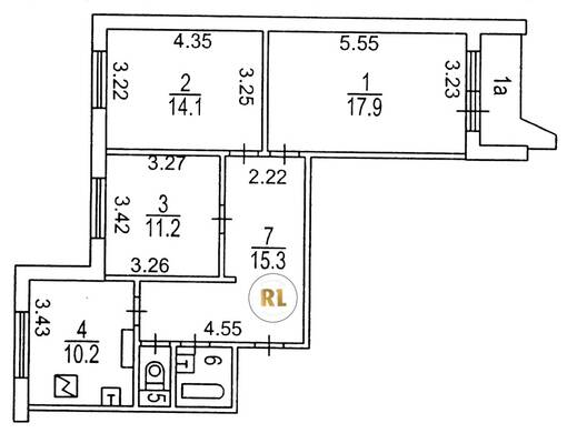
База каталог, Кол-во подъездов: 4, Имеется, П-44, Москва, Марьино, Пассажирский лифт: 4, От метро: 1450, Юго-Восточный, да, Наименьшее кол-во этажей: 12, Наибольшее кол-во этажей: 12, Братиславская, Кол-во помещений: 191, Кол-во нежилых помещений: 0, Год ввода в эксплуатацию: 2000, 3-комн, Кол-во жилых помещений: 191, Не присвоен, дом 30, нет, да, да, да, да, нет, Имеется, Грузовых лифтов: 4, Год постройки: 2000, Белореченская улица, 37.770537, 55.663568
Свяжитесь со мной на счет цены
10 дн.
T55S663568L37S770537T

На карте


Условия сделки

Источник


Старт продаж

Возможно заинтересует