Top.Mail.Ru

Братиславская ул., д. 6, к. 1

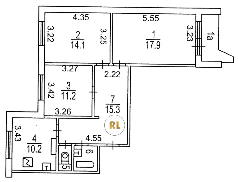
База каталог, Кол-во подъездов: 4, П-44, Москва, Марьино, Площадь парковки: 0, Пассажирский лифт: 4, От метро: 520, Юго-Восточный, нет, Наименьшее кол-во этажей: 14, Наибольшее кол-во этажей: 14, Братиславская, Кол-во помещений: 228, Кол-во нежилых помещений: 5, Год ввода в эксплуатацию: 1999, 3-комн, Кол-во жилых помещений: 223, Не присвоен, дом 6, корпус 1, да, да, да, да, да, да, Имеется, Грузовых лифтов: 4, Год постройки: 1999, Братиславская улица, 37.751772, 55.663918
Свяжитесь со мной на счет цены
10 дн.
T55S663918L37S751772T

На карте


Условия сделки

Источник


Старт продаж

Возможно заинтересует