Top.Mail.Ru

улица Воронцовские Пруды, д. 7

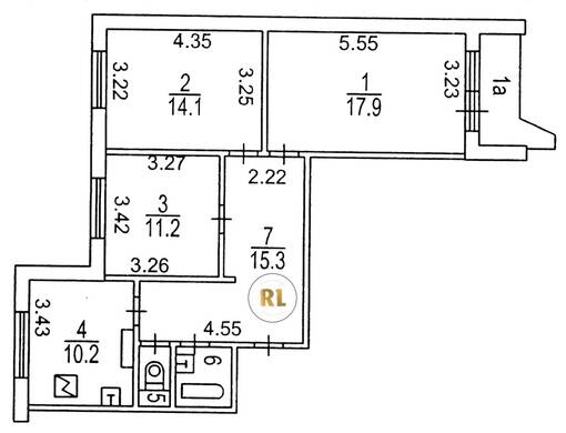
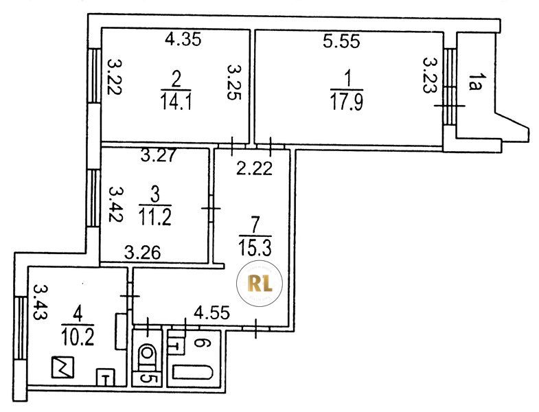
База каталог, Кол-во подъездов: 4, П-44, Москва, Обручевский, Пассажирский лифт: 4, От метро: 870, Юго-Западный, да, Наименьшее кол-во этажей: 17, Наибольшее кол-во этажей: 17, Новаторская, Кол-во помещений: 272, Кол-во нежилых помещений: 1, Год ввода в эксплуатацию: 1984, 3-комн, Кол-во жилых помещений: 271, дом 7, нет, да, да, да, да, да, Грузовых лифтов: 4, Год постройки: 1984, улица Воронцовские Пруды, 37.533050, 55.663964
Свяжитесь со мной на счет цены
10 дн.
T55S663964L37S533050T

На карте


Условия сделки

Источник


Старт продаж

Возможно заинтересует