Top.Mail.Ru

Новочеремушкинская ул., д. 64, к. 1

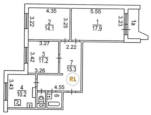
База каталог, Кол-во подъездов: 3, П-44, Москва, Черемушки, Площадь парковки: 0, Пассажирский лифт: 3, От метро: 880, Юго-Западный, нет, Наименьшее кол-во этажей: 17, Наибольшее кол-во этажей: 17, Новые Черёмушки, Кол-во помещений: 205, Кол-во нежилых помещений: 4, Год ввода в эксплуатацию: 1994, 3-комн, Кол-во жилых помещений: 201, Не присвоен, дом 64, корпус 1, нет, да, да, да, да, да, Грузовых лифтов: 3, Год постройки: 1994, Новочеремушкинская улица, 37.560754, 55.664035
Свяжитесь со мной на счет цены
10 дн.
T55S664035L37S560754T

На карте


Условия сделки

Источник


Старт продаж

Возможно заинтересует