Top.Mail.Ru

улица Верхние Поля, д. 18

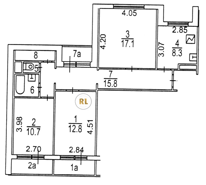
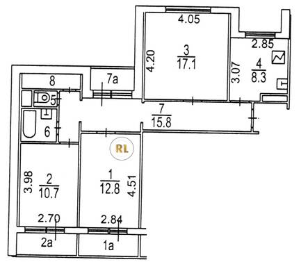
База каталог, Кол-во нежилых помещений: 8, П-55, Москва, Марьино, Пассажирский лифт: 8, От метро: 770, Юго-Восточный, да, Наименьшее кол-во этажей: 14, Наибольшее кол-во этажей: 14, Братиславская, Кол-во помещений: 156, Кол-во подъездов: 4, 3-комн, Год ввода в эксплуатацию: 1999, Кол-во жилых помещений: 148, Не присвоен, дом 18, нет, да, да, да, да, да, Имеется, Грузовых лифтов: 0, Год постройки: 1999, улица Верхние Поля, 37.747217, 55.664218
18 000 000 Р
10 дн.
T55S664218L37S747217T
+

На карте


Условия сделки

Источник


Старт продаж

Возможно заинтересует