Top.Mail.Ru

Коломенский проезд, д. 8, к. 3

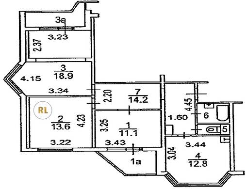
База каталог, Кол-во подъездов: 2, П-44T, Москва, Нагатино-Садовники, Площадь парковки: 0, Пассажирский лифт: 2, От метро: 1400, Южный, нет, Наименьшее кол-во этажей: 1, Наибольшее кол-во этажей: 16, Каширская, Кол-во помещений: 128, Кол-во нежилых помещений: 1, Год ввода в эксплуатацию: 1982, 3-комн, Кол-во жилых помещений: 127, дом 8, корпус 3, нет, да, да, да, да, нет, Имеется, Грузовых лифтов: 2, Год постройки: 1981, Коломенский проезд, 37.649678, 55.664233
Свяжитесь со мной на счет цены
10 дн.
T55S664233L37S649678T

На карте


Условия сделки

Источник


Старт продаж

Возможно заинтересует