Top.Mail.Ru

улица Верхние Поля, д. 42, к. 1

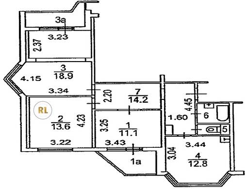
База каталог, Кол-во подъездов: 7, Имеется, П-44T, Москва, Марьино, Площадь парковки: 0, Пассажирский лифт: 7, От метро: 1880, Юго-Восточный, нет, Наименьшее кол-во этажей: 17, Наибольшее кол-во этажей: 17, Люблино, Кол-во помещений: 462, Кол-во нежилых помещений: 10, Год ввода в эксплуатацию: 2002, 3-комн, Кол-во жилых помещений: 452, В, дом 42, корпус 1, нет, да, да, да, нет, нет, Имеется, Грузовых лифтов: 7, Год постройки: 2002, улица Верхние Поля, 37.777068, 55.664421
Свяжитесь со мной на счет цены
10 дн.
T55S664421L37S777068T

На карте


Условия сделки

Источник


Старт продаж

Возможно заинтересует