Top.Mail.Ru

улица Перерва, д. 62, к. 2

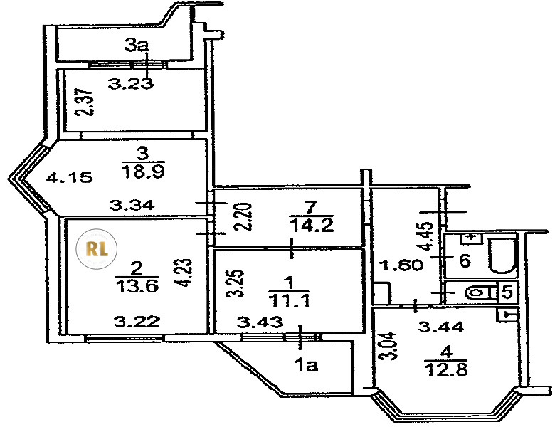
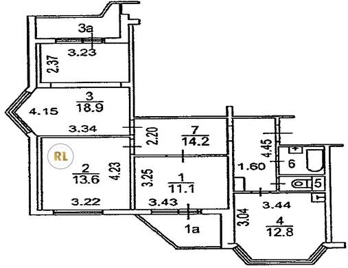
База каталог, Кол-во подъездов: 5, Имеется, П-44T, Москва, Марьино, Пассажирский лифт: 5, От метро: 1220, Юго-Восточный, да, Наименьшее кол-во этажей: 17, Наибольшее кол-во этажей: 17, Братиславская, Кол-во помещений: 330, Кол-во нежилых помещений: 10, Год ввода в эксплуатацию: 2000, 3-комн, Кол-во жилых помещений: 320, дом 62, корпус 2, нет, да, да, да, да, нет, Имеется, Грузовых лифтов: 5, Год постройки: 2000, улица Перерва, 37.766010, 55.664751
Свяжитесь со мной на счет цены
10 дн.
T55S664751L37S766010T

На карте


Условия сделки

Источник


Старт продаж

Возможно заинтересует