Top.Mail.Ru

Братиславская ул., д. 3

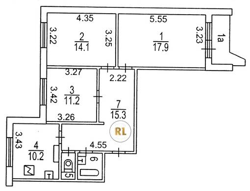
База каталог, Кол-во подъездов: 5, П-44, Москва, Марьино, Площадь парковки: 0, Пассажирский лифт: 5, От метро: 650, Юго-Восточный, нет, Наименьшее кол-во этажей: 12, Наибольшее кол-во этажей: 17, Братиславская, Кол-во помещений: 304, Кол-во нежилых помещений: 20, Год ввода в эксплуатацию: 2000, 3-комн, Кол-во жилых помещений: 284, Не присвоен, дом 3, нет, да, да, да, да, да, Имеется, Грузовых лифтов: 5, Год постройки: 2000, Братиславская улица, 37.754485, 55.664913
Свяжитесь со мной на счет цены
10 дн.
T55S664913L37S754485T

На карте


Условия сделки

Источник


Старт продаж

Возможно заинтересует