Top.Mail.Ru

Братиславская ул., д. 11

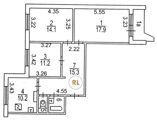
База каталог, Кол-во подъездов: 5, П-44, Москва, Марьино, Площадь парковки: 0, Пассажирский лифт: 5, От метро: 780, Юго-Восточный, нет, Наименьшее кол-во этажей: 17, Наибольшее кол-во этажей: 17, Братиславская, Кол-во помещений: 305, Кол-во нежилых помещений: 7, Год ввода в эксплуатацию: 2000, 3-комн, Кол-во жилых помещений: 298, Не присвоен, дом 11, нет, да, да, да, да, да, Имеется, Грузовых лифтов: 5, Год постройки: 2000, Братиславская улица, 37.757278, 55.664923
Свяжитесь со мной на счет цены
10 дн.
T55S664923L37S757278T

На карте


Условия сделки

Источник


Старт продаж

Возможно заинтересует