Top.Mail.Ru

улица Наметкина, д. 9, к. 1

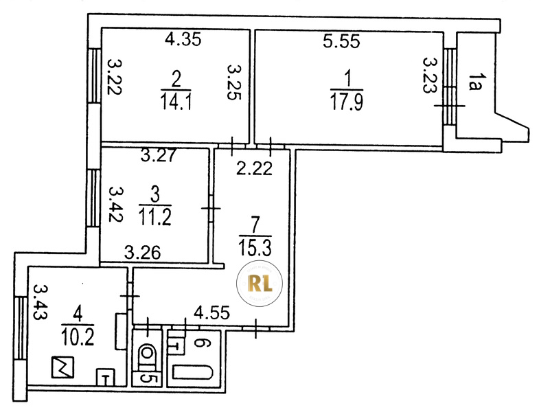
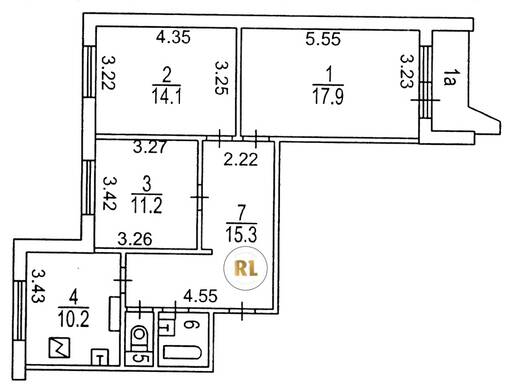
База каталог, Кол-во подъездов: 7, П-44, Москва, Черемушки, Площадь парковки: 0, Пассажирский лифт: 7, От метро: 580, Юго-Западный, нет, Наименьшее кол-во этажей: 17, Наибольшее кол-во этажей: 17, Новые Черёмушки, Кол-во помещений: 462, Кол-во нежилых помещений: 2, Год ввода в эксплуатацию: 1998, 3-комн, Кол-во жилых помещений: 460, Не присвоен, дом 9, корпус 1, да, да, да, да, да, да, Грузовых лифтов: 7, Год постройки: 1998, улица Наметкина, 37.552462, 55.665101
Свяжитесь со мной на счет цены
10 дн.
T55S665101L37S552462T

На карте


Условия сделки

Источник


Старт продаж

Возможно заинтересует