Top.Mail.Ru

улица Перерва, д. 62, к. 3

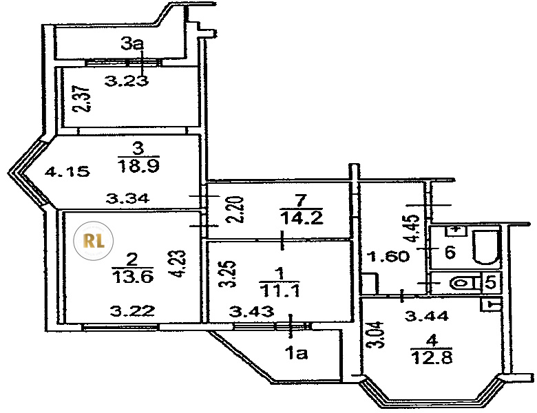
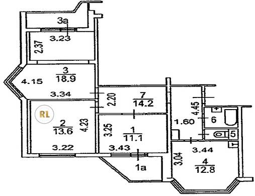
База каталог, Кол-во подъездов: 2, П-44T, Москва, Марьино, Пассажирский лифт: 2, От метро: 1300, Юго-Восточный, да, Наименьшее кол-во этажей: 14, Наибольшее кол-во этажей: 14, Люблино, Кол-во помещений: 107, Кол-во нежилых помещений: 3, Год ввода в эксплуатацию: 2000, 3-комн, Кол-во жилых помещений: 104, дом 62, корпус 3, нет, да, да, да, да, нет, Грузовых лифтов: 2, Год постройки: 2000, улица Перерва, 37.767169, 55.665157
Свяжитесь со мной на счет цены
10 дн.
T55S665157L37S767169T

На карте


Условия сделки

Источник


Старт продаж

Возможно заинтересует