Top.Mail.Ru

улица Верхние Поля, д. 15, к. 1

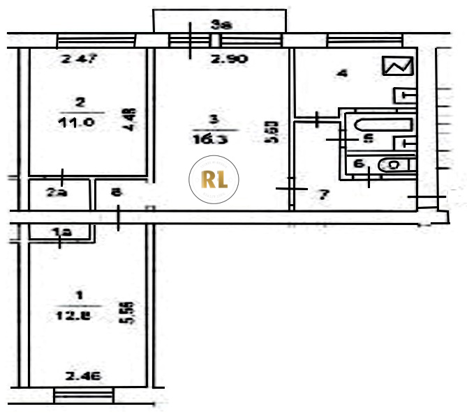
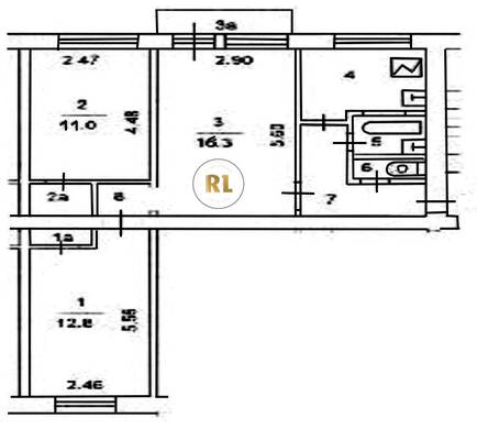
База каталог, Кол-во подъездов: 3, Имеется, I-511, Москва, Люблино, Пассажирский лифт: 0, От метро: 1170, Юго-Восточный, да, Наименьшее кол-во этажей: 1, Наибольшее кол-во этажей: 5, Братиславская, Кол-во помещений: 60, Кол-во нежилых помещений: 0, Год ввода в эксплуатацию: 1964, 3-комн, Кол-во жилых помещений: 60, дом 15, корпус 1, нет, да, да, да, да, нет, Имеется, Грузовых лифтов: 0, Год постройки: 1964, улица Верхние Поля, 37.748942, 55.666543
Свяжитесь со мной на счет цены
10 дн.
T55S666543L37S748942T

На карте


Условия сделки

Источник


Старт продаж

Возможно заинтересует