Top.Mail.Ru

улица Марьинский Парк, д. 35

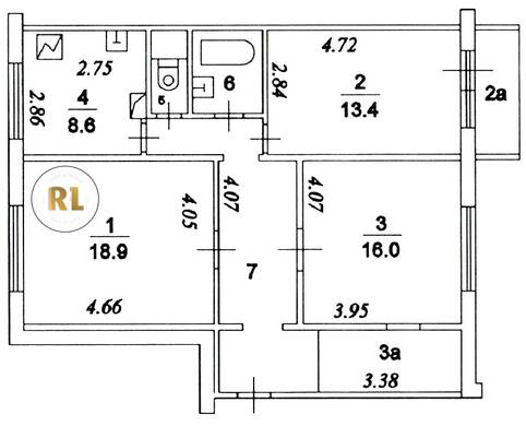
База каталог, Кол-во подъездов: 9, П-46M, Москва, Люблино, Площадь парковки: 0, Пассажирский лифт: 9, От метро: 2210, Юго-Восточный, нет, Наименьшее кол-во этажей: 12, Наибольшее кол-во этажей: 12, Люблино, Кол-во помещений: 257, Кол-во нежилых помещений: 0, Год ввода в эксплуатацию: 2003, 3-комн, Кол-во жилых помещений: 257, дом 35, нет, да, да, нет, нет, нет, Имеется, Грузовых лифтов: 5, Год постройки: 2003, улица Марьинский Парк, 37.788387, 55.666558
Свяжитесь со мной на счет цены
10 дн.
T55S666558L37S788387T

На карте


Условия сделки

Источник


Старт продаж

Возможно заинтересует