Top.Mail.Ru

Никулинская ул., д. 15, к. 3

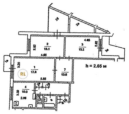
База каталог, Кол-во подъездов: 4, П-3/16, Москва, Тропарево-Никулино, Площадь парковки: 0, Пассажирский лифт: 4, От метро: 660, Западный, нет, Наименьшее кол-во этажей: 1, Наибольшее кол-во этажей: 17, Озёрная, Кол-во помещений: 273, Кол-во нежилых помещений: 4, Год ввода в эксплуатацию: 1993, 3-комн, Кол-во жилых помещений: 269, Не присвоен, дом 15, корпус 3, нет, да, да, да, да, да, Грузовых лифтов: 4, Год постройки: 1993, Никулинская улица, 37.453495, 55.666853
Свяжитесь со мной на счет цены
10 дн.
T55S666853L37S453495T

На карте


Условия сделки

Источник


Старт продаж

Возможно заинтересует