Top.Mail.Ru

Краснодарская ул., д. 76

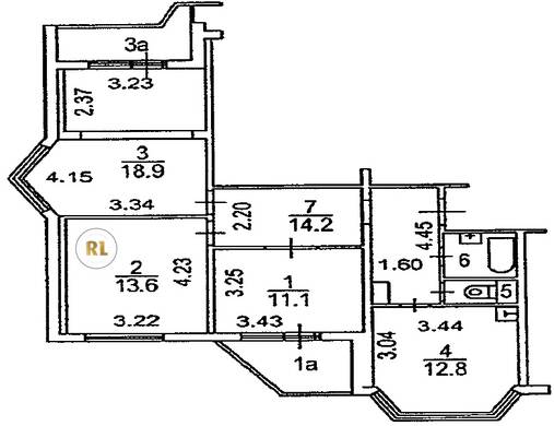
База каталог, Кол-во подъездов: 4, Отсутствует, П-44T, Москва, Люблино, Пассажирский лифт: 0, От метро: 1860, Юго-Восточный, да, Наименьшее кол-во этажей: 0, Наибольшее кол-во этажей: 0, Люблино, Кол-во помещений: 0, Кол-во нежилых помещений: 0, Год ввода в эксплуатацию: 2003, 3-комн, Кол-во жилых помещений: 0, дом 76, нет, да, да, да, нет, нет, Имеется, Грузовых лифтов: 0, Год постройки: 2003, Краснодарская улица, 37.781713, 55.666868
Свяжитесь со мной на счет цены
10 дн.
T55S666868L37S781713T

На карте


Условия сделки

Источник


Старт продаж

Возможно заинтересует